The North Building
First Floor
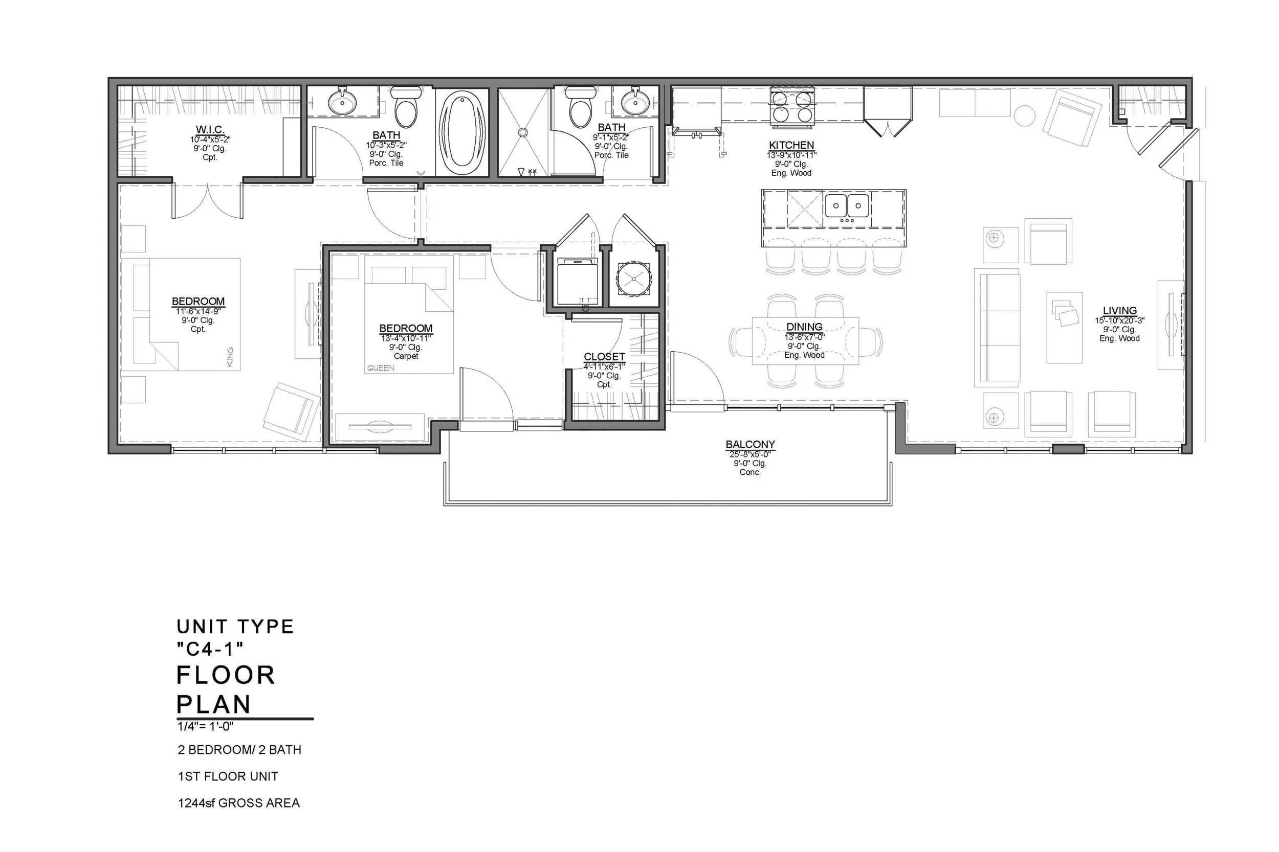
The first floor features a parking garage, retail space, the resident lobby, and 2 bedroom apartments.
1244 SF | AVAILABLE ON 1ST FLOOR
1263 SF | AVAILABLE ON 1ST FLOOR
1244 SF | AVAILABLE ON 1ST FLOOR