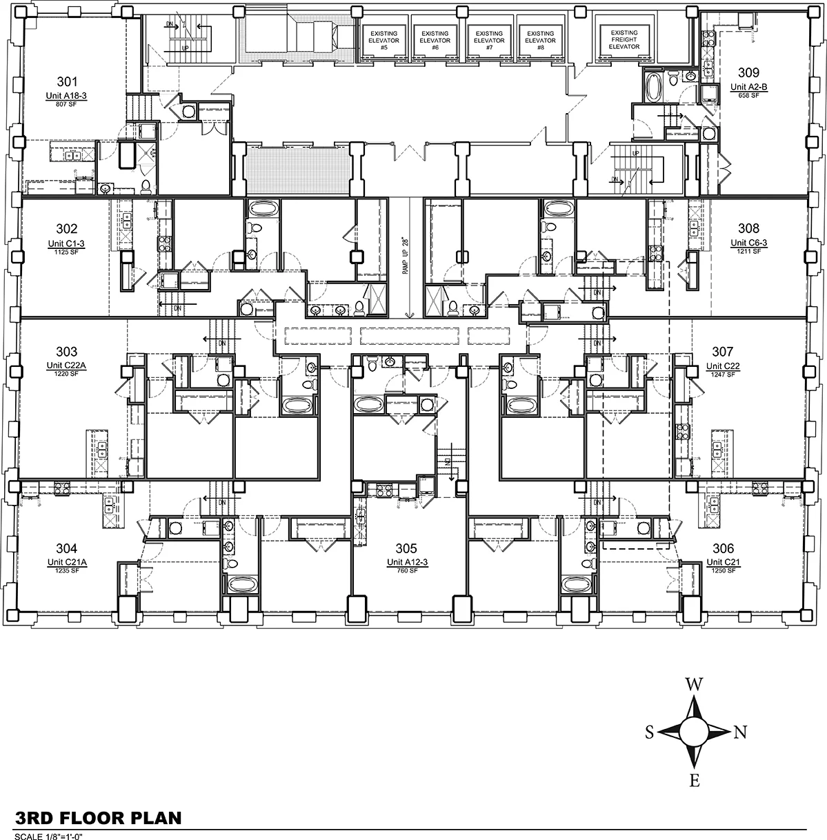
The Third Floor
The 3rd floor features both 1 bedroom and 2 bedroom units.
Floor Plan Layout
Individual Floor Plans
Featured
The Third Floor
The 3rd floor features both 1 bedroom and 2 bedroom units.
658 SF | AVAILABLE ON 3RD, 4TH FLOOR